BlueScope Steel Coke Plant No.5 Project
BlueScope Steel — Coke Plant No. 5 Design Documentation
BlueScope Steel — Coke Plant No. 5 Design Documentation
Client: BlueScope Steel | Partner: L.E. Otten Engineering Consultancy Scope: Structural & Piping Design Documentation
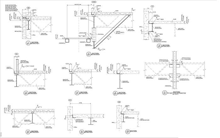
KEVOS® partnered with L.E. Otten, a leading engineering consultancy, to deliver the complete structural and piping design documentation for BlueScope Steel's Coke Plant No. 5 — a heavy-industrial facility where precision documentation directly translates to operational safety, build accuracy, and project economics.
The Challenge Coke plant infrastructure demands documentation of uncompromising accuracy. Even minor inconsistencies across structural and piping drawings can cascade into costly rework, schedule slippage, and on-site safety risks. The project required tight alignment between engineering intent, contractor capability, and stringent regulatory standards.
Our Approach We embedded our drafting expertise directly into the consultancy workflow — translating engineering specifications into clear, dimensionally accurate, fabrication-ready drawings. Every component, material specification, and connection detail was modelled with full traceability and cross-disciplinary coordination. Continuous collaboration with engineers, contractors, and approvers kept the documentation aligned with evolving site conditions and compliance requirements.
The Outcome A complete drawing package delivered on time and on budget — production-ready, audit-ready, and fully aligned with industry standards. The documentation provided BlueScope and its partners with a single source of truth from procurement through to construction, testing, and commissioning.
Key Highlights
- Delivered structural and piping documentation for a complex heavy-industrial facility
- Achieved 100% on-time, on-budget completion in partnership with L.E. Otten
- Ensured full compliance with industry standards, safety codes, and regulatory frameworks
- Reduced risk of error and rework through rigorous review and stakeholder coordination
- Provided fabrication-ready drawings supporting procurement, construction, and commissioning
KEVOS® delivers precision drafting and design documentation for industrial, structural, and engineering projects worldwide.
